ID CP2738285

Casa individuala la cheie, 121 mp/utili, teren 515 mp, Bod/Brasov

Această proprietate nu mai este activă,
te invităm să vizualizezi proprietăți similare

ID CP2738285

140,000 € + 21% TVA

Casă / Vilă cu 4 camere de vânzare
Bod
125 mp
2025

Prețul nu include TVA!

Comision 0%

Casă individuală cu 4 camere si curte generoasă de 515 mp, situată la intrare in localitatea BOD, cu vedere panoramica asupra Muntilor la o distanta de doar 10 minute de Varianta Ocolitoare a Brasovului, 12 minute distanta de Mall Coresi.

Proprietatea este situata intr-o zona noua, aerisita, cu Vile individuale, oferind liniste si intimitate viitorilor proprietari. Este o zona accesibila cu multe perspective, ideal pentru familii cu copii sau cupluri de orice varsta.

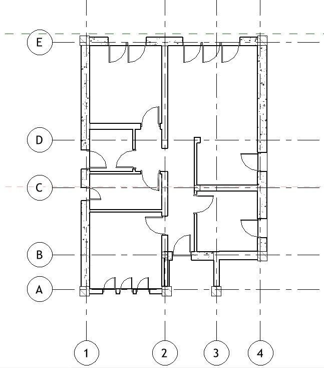
Casa este dispusa pe parter iar compartimentarea este urmatoarea:

– Parter – cu o suprafata utila de 121 mp:

-hol 15.4 mp ,

-camera de zi+bucatarie 32 mp,

-dormitor 1- 19,5 mp,

-dormitor2-16 mp,

-dormitor3-16 mp,

-grup sanitar- 4.5 mp,

camera tehnica/debara-7.4

Grup sanitar 5,2 mp.

Utilități & Tehnologii incluse:

Apă + puț propriu

Fosă septică

Curent + Panouri solare 10KW

GPL (butelie)

Internet fibră optică

Curte amenajată: parcare + gazon + arbori ornamentali

Finisaje realizate cu designer — stil contemporan, armonizat

Detalii tehnice:

• Structură Cărămidă + Beton

• Încălzire în pardoseală (la cerere contra cost)

• Acoperiș tablă ceramică

• Geamuri 4 anotimpuri, profil PVC + cadru metalic

• Izolație fațadă vată bazaltică 10 cm

• Izolație acoperiș 25 cm

• Design interior profesional

• Garanție 10 ani + cartea tehnică a imobilului

Opțiuni suplimentare pentru personalizarea casei tale:

• Copertină parcare + priză încărcare auto electrică: 11.000 EUR

• Foișor: 250 EUR/mp

• Supliment panouri + baterii: 1000 EUR/KW peste cei 10KW incluși

Plata in 3 transe:

- 30% la semnarea antecontractului

- 30% la stadiu de constructie la Rosu

- 40% la finalizarea constructiei.

Și

Se accepta Credit Ipotecar

Locație liniștită, aproape de oraș, perfectă pentru familii și pentru cei care vor confort premium la un preț corect.

Pentru mai multe detalii astept cu drag un telefon de la Dumneavoastra si pentru a beneficia de pretul la stadiu de proiect!

Citește mai mult

  • Număr camere
    4
  • Dormitoare
    3
  • Număr bucătării
    1
  • Număr băi
    2
  • Geam la baie
    Da
  • Număr locuri parcare
    2
  • Disponibilitate
    Imediat
  • Tip casă
    Individual
  • Stare interior
    Finisat modern
  • Anul finisării
    2026
  • Suprafață utilă
    125 mp
  • Suprafață construită
    150 mp
  • Suprafață teren
    515 mp
  • Acoperiș
    Tablă
  • An construcție
    2025
  • Construcție nouă
    Da

Facilități

Apă
Apometre
Canalizare
CATV
Contor electric
Curent
Faianță
Gaz
Gresie
Iluminat stradal
Internet
Izolație exterioară
Mijloace de transport în comun
Parchet
Străzi asfaltate
Telefon
Vedere panoramică
Vedere spre munte
Vopsea lavabilă
Necesare:

Site-ul nu poate funcționa corect fără aceste cookie-uri. Vezi cookie-urile

Statistică:

Strângem statistici anonime despre voi, vizitatorii unici, pentru a vă îmbunătăți experiența dumneavoastră. Vezi cookie-urile

Marketing:

Pentru a ne promova mai eficient serviciile noastre, folosim cookies pentru a vă identifica și a vă oferi proprietăți și servicii personalizate. Vezi cookie-urile

Acest site folosește cookies, află detalii. Alege ce tipuri de cookies dorești să permitem: