ID CP3008427

Casa nouă individuală, 3 dormitoare | 500 mp teren | Cartier Izvor

ID CP3008427

185,000 €

Casă / Vilă cu 4 camere de vânzare
Tarlungeni
108 mp
2026

Trăiește confortul unei case noi, într-o zonă liniștită, aproape de Brașov.

Îți prezentăm o casă individuală modernă, situată în cartierul Izvor, ideală pentru cei care își doresc spațiu, liniște și libertatea de a-și personaliza locuința după propriul stil.

Casa se predă la cheie, iar tu îți alegi finisajele –oportunitate de personalizare completă fără stresul construcției

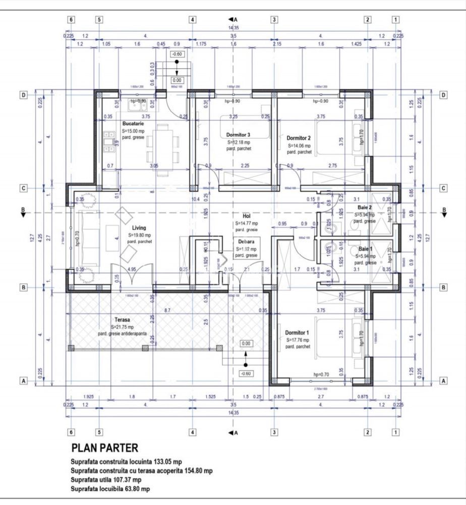
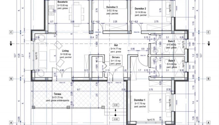
Cu o suprafață utilă de 108 mp și un teren generos de 500 mp, această proprietate oferă echilibrul perfect între confortul interior și relaxarea în aer liber.

Compartimentare eficientă:

-3 dormitoare luminoase

-living open-space cu bucătărie

-2 băi

-hol + spații de depozitare

-terasă acoperită

Avantaje care fac diferența:

încălzire în pardoseală – confort premium

suprafețe vitrate mari – lumină naturală din plin

pod generos (~60 mp) – spațiu extra

teren 500 mp – ideal pentru familie

stradă asfaltată

Un avantaj major:

Locație liniștită, cu acces rapid către Brașov – perfectă atât pentru locuit, cât și pentru investiție.

Ideală pentru familii sau pentru cei care vor să iasă din agitația orașului, fără să renunțe la confort.

Citește mai mult

  • Număr camere
    4
  • Dormitoare
    3
  • Număr bucătării
    1
  • Număr băi
    2
  • Geam la baie
    Da
  • Număr terase
    1
  • Număr locuri parcare
    2
  • Disponibilitate
    Imediat
  • Tip casă
    Individual
  • Stare interior
    Finisat modern
  • Anul finisării
    2026
  • Suprafață utilă
    108 mp
  • Suprafață construită la sol (Amprentă)
    154.0 mp
  • Suprafață teren
    500 mp
  • Suprafață terasă
    22 mp
  • Acoperiș
    Tablă
  • Stadiu construcție
    Finisat
  • An construcție
    2026
  • Construcție nouă
    Da
  • Are pod
    Da

Facilități

Apă
Apometre
Bucătărie deschisă
Canalizare
CATV
Centrală proprie
Contor electric
Contor gaz
Curent
Curte
Ferestre PVC
Gaz
Iluminat stradal
Încălzire prin pardoseală
Internet
Izolație exterioară
Mijloace de transport în comun
Parcare deschisă
Străzi asfaltate
Telefon
Vedere panoramică
Zmuncila Olga - Mountimob Top Estate
Zmuncila Olga
Agent

+40771042303


Solicită chiar acum o vizionare
Telefon
Sună acum Solicită vizionare
Necesare:

Site-ul nu poate funcționa corect fără aceste cookie-uri. Vezi cookie-urile

Statistică:

Strângem statistici anonime despre voi, vizitatorii unici, pentru a vă îmbunătăți experiența dumneavoastră. Vezi cookie-urile

Marketing:

Pentru a ne promova mai eficient serviciile noastre, folosim cookies pentru a vă identifica și a vă oferi proprietăți și servicii personalizate. Vezi cookie-urile

Acest site folosește cookies, află detalii. Alege ce tipuri de cookies dorești să permitem: